Image Image Image Image Image Image Image Image Image Image

ame arquitetura | March 13, 2026

Scroll to top

Top

No Comments

MiniMod: a casa que pode se mudar com voce!

MiniMod: a casa que pode se mudar com voce!
amearquitetura

Uma casa onde a madeira é reaproveitada, a cobertura verde, a estrutura pré fabricada em aço e que pode ser transportada para qualquer lugar é um ícone para uma arquitetura sustentável! Um grupo de arquitetos no Rio Grande do Sul idealizou a MiniMod, que pode ter inúmeros usos. Tudo de acordo com o orçamento do cliente e organização dos módulos!! Sem falar em empresas que precisam deslocar seus empregados para áreas distantes e sem infra-estrutura. O Minimod é feito com uma estrutura de aço pré fabricada, e que pode ser adaptada tanto para áreas rurais quanto para urbanas, de acordo com a atividade que queira praticar. Para suas utilizações possíveis, de acordo com a união dos módulos pode-se formar desde uma sala de exposição para eventos, a um complexo de maior escala, como um hotel. Super flexivel!

 

 

Com um projeto a partir de módulos, pode se dar variados usos ao Minimod.

Com um projeto a partir de módulos, pode se dar variados usos ao Minimod.

 

A estrutura simples permite que o módulo faça parte do contexto que o envolve.

A estrutura simples permite que o módulo faça parte do contexto que o envolve.

 

Para este minimod foram usados revestimentos naturais como a madeira reaproveitada, aberturas em vidro para garantir iluminação natural e móveis arrojados que fazem um interior mais contemporaneo.

Para este minimod foram usados revestimentos naturais como a madeira reaproveitada, aberturas em vidro para garantir iluminação natural e móveis arrojados que fazem um interior mais contemporaneo.

 

A iluminação interna é simples e direta, assim como o sistema de automação, já que a alimentação de energia elétrica pode ser precária. A madeira em contraste com as esquadrias em preto tornam sofisticado o interior. Extremidades com fechamento em vidro trazem o entorno para dentro do módulo.

A iluminação interna é simples e direta, assim como o sistema de automação, já que a alimentação de energia elétrica pode ser precária. A madeira em contraste com as esquadrias em preto tornam sofisticado o interior. Extremidades com fechamento em vidro trazem o entorno para dentro do módulo.

 

Os vários tipos de uso e a inserção do Minimod na paisagem rural.

Os vários tipos de uso e a inserção do Minimod na paisagem rural. No detalhe, pode-se perceber o telhado verde criado para dar maior conforto térmico ao módulo, diminuindo, assim, a necessidade de refrigeração mecanica.

 

Os módulos podem ser transportados por caminhões, sendo reaproveitados em outras funções e lugares.

Os módulos podem ser transportados por caminhões, sendo reaproveitados em outras funções e lugares.

 

 

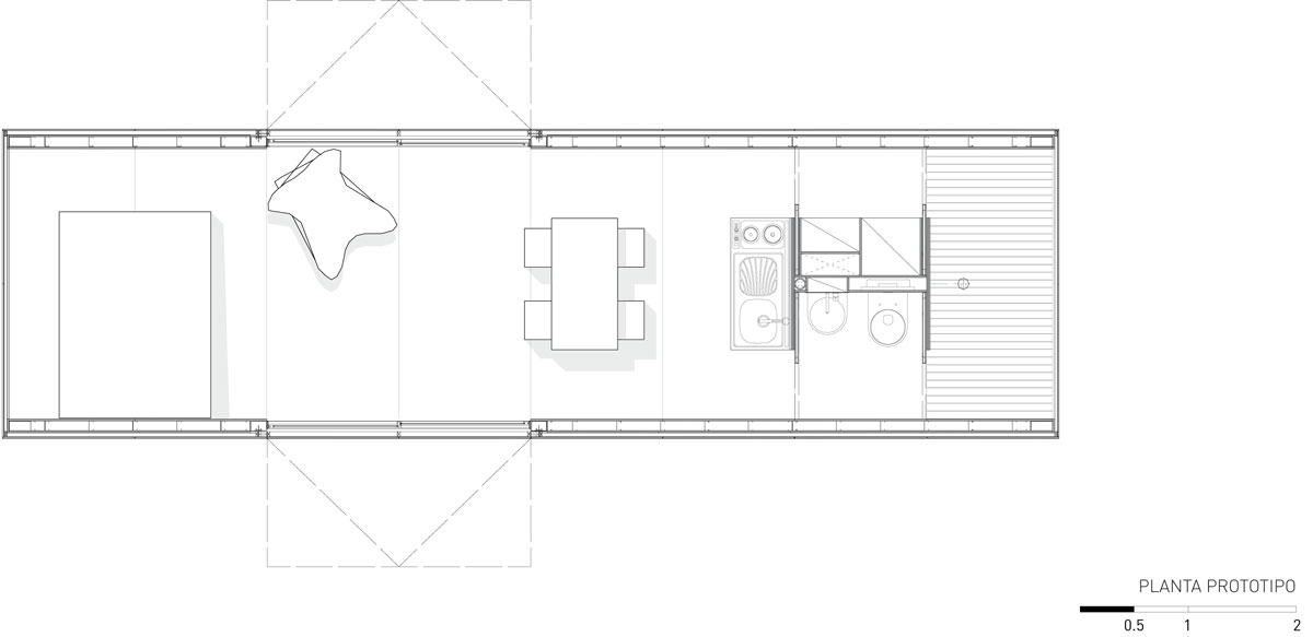
Planta Baixa do MAPA Arquitetos, idealizadores do MiniMod

Planta Baixa do MAPA Arquitetos, idealizadores do MiniMod

 

Fachada lateral com aberturas, projeto da MAPA Arquitetura

Fachada lateral com aberturas, projeto da MAPA Arquitetos

 

Corte para visualização do interior do MiniMod, feito pela MAPA Arquitetos

Corte para visualização do interior do MiniMod, feito pela MAPA Arquitetos

 

Projeto: MAPA Arquitetos
Localização: Maquiné, Rio Grande do Sul, Brasil
Ano: 2013
Area Modulo: 27m²
Volume: 81m³
Fotos: Leonardo Finotti 
 

Por Aline Araujo

 

 

 

 

 

 

 

 

 

 

 

 

 

Submit a Comment

Or